Ferienwohnung Smandzik
- Fotos & Karte
Wie erfolgt die Anreise?
- Anrufen
- Beschreibung
- Gut zu wissen
- In der Nähe
Nichtraucherwohnung
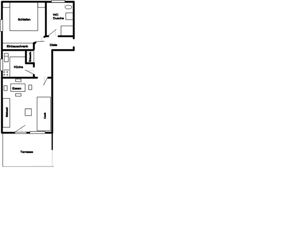
Das Haus befindet sich oberhalb des Ortskerns in der Nähe des Johannesbades. Es hat 2 Geschosse, die Wohnung befindet sich im Erdgeschoß und ist über eine vierstufige Aussentreppe erreichbar. Die Wohnung kann feucht gereinigt werden und hat somit keinen Teppichboden. Die Wohnung hat Dusche/WC, ein Schlafzimmer mit Einbauschrank, Küche mit Kühlschrank, Mikrowellenherd und Heißluftherd, Wohnzimmer mit Zugang zur Terrasse (Westausrichtung), alle Räume haben ein Fenster und werden durch eine Diele erschlossen. Die Wohnung bietet WLAN.
Zur Wohnung gehört ein Parkplatz, der sich direkt neben dem Haus befindet.
Gut zu wissen
Kapazität
| Anzahl Betten | 2 |
|---|---|
| Anzahl der Ferienwohnungen | 1 |
Fremdsprachen
Technische Ausstattung
WiFi
Einrichtungen Betrieb
Gartenmöbel
Nichtraucherhaus
PKW-Parkplatz
Anreise & Parken
Weitere Infos
Die Hausordnung ist zu beachten.
Aus Richtung Saulgrub kommend nach der Minigolfanlage erste Straße links in die Lamplstr. einbiegen, ca. 300 m rechts befindet sich die Wohnung. Aus Murnau kommend den Ortskern durchfahren. Vor dem Hotel Johannesbad rechts in die St.-Rochus-Str. abbiegen, nach ca. 200 m links in die Lamplstr. und nach weiteren ca. 100 m links befindet sich die Wohnung.
Kontaktdaten
In der Nähe










